Ønsker du mer info og pris?
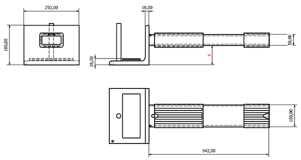
BWC 55-740 med vinkel
BWC 55-740 er vårt beste alternativ til tradisjonelle kuldebrobrytere, eller direkte innstøpte stålprofiler for bæring av balkonger/svalganger med frontsøyler eller skråstag.
Systemet består av flere deler:
Utsparingsboks i dekke: Om man velger å benytte denne, støpes utsparingsboksen inn i dekket, og skal forankres med angitt forankringsarmering.
Ytterrør: Denne kan alternativt støpes direkte inn i dekket, eller tres inn i allerede etablert utsparingsboks. Denne modellen er utstyrt med et klemflenssystem mot GU, som holder vannet på utsiden. Velger man å støpe ytterrøret direkte inn i dekket, anbefaler vi at det tas med vår gummimansjett (700x700 mm) som tar opp evt. støpe avvik, og limes mot GU.
Innerrør med vinkel: Dette er delen som forbinder dekke og balkong-/svalgangselementet. Denne kommer i flere varianter. Mest vanlig kombineres den med en innstøpt balkongkasse (BWC 55-4), eller den kommer med en påsveiset vinkel. Skal balkong eller svalgang plasstøpes, forlenges innerrøret, og det armeres direkte på innerrøret.
Alle deler er laget av stål S355, og varmforzinket.
Se mer i Invisible Connections® Memo 701a side 3 og 4.
| Maks. skjærkraft(kN) | ||
| Bruddgrenselast vertikalt | Stålvinkel rett veg | FV = 60kN |
| Bruddgrenselast vertikalt | Stålvinkel opp-ned med to avstivere | FV = 45kN |
| Bruddgrenselast vertikalt | Stålvinkel opp-ned uten avstivere | FV = 20kN |
| BWC 55-740-1 ytterrør | ![]() |
| BWC 55-740 -2-V innerrør | ![]() |
| BWC 55-4 utsparingskasse | ![]() |
Teknisk info - BWC
| Memo nr | Navn/nedlastning | Format | |
|---|---|---|---|
| Memo 701a | BWC 55-740 Tekniske spesifikasjoner | ![]() | |
Memo 702a | BWC 55-740 Beregning av forankringsarmering | ![]() | |
| Memo 703a | BWC 55-740 Eksempel forankringsarmering | ![]() | |
| Memo 710 | BWC H60 BWC HV80 | ![]() | |
| Memo 711 | BWC H60 BWC HV80 Beregning av armering | ![]() | |
| Memo 712 | BWC H60 BWC HV80 - standard armering | ![]() | |
| Memo 720 | BWC Trinnvis kontroll | ![]() | |
| Memo 721b | BWC 40-500 Tekniske spesifikasjoner | ![]() | |
| Memo 722b | BWC 40-500 Beregning sveis og armering | ![]() | |
| Memo 723b | BWC 40-500 Standard sveis og armering | ![]() | |
| Memo 730 | BWC 50-240 Veiledning | ![]() | |
| Memo 731 | BWC 50-240 Tekniske spesifikasjoner | ![]() | |
| Memo 732 | BWC 50-240 Beregning sveis og balkongarmering | ![]() | |
| Memo 733 | BWC 50-240 Standard sveis og armering | ![]() | |
| Memo 734 | BWC 50-240 Eksempel | ![]() |
| Bilde | Produkt |
Step | ![]() DWG 2D |
IFC |
PDF |
|---|---|---|---|---|---|
![]() | BWC 55-740-1 | BWC 55-740-1 | BWC 55-740-1 | BWC 55-740-1 | BWC 55-740-1 |
![]() | BWC 55-740-2-v | BWC 55-740-2-v | BWC 55-740-2-v | BWC 55-740-2-v | BWC 55-740-2-v |
![]() | BWC 55-740-5-T | BWC 55 740-5-T | BWC 55 740-5-T | BWC 55 740-5-T | BWC 55 740-5-T |
Balkongforbindelse (skjær) klemflens ingeniør
Balkongforbindelse (skjær) klemflens montering
Balkongforbindelse (skjær) klemflens produksjon
Gå til Brosjyrer












Step
IFC

