- Hjem
- Produkter
- Balkongforbindelser
- Skjærforbindelser med dobbel vanntetting. Kombineres med søyler i front eller skråstag
- BWC 55 light 2-V-R - reversert
Ønsker du mer info og pris?
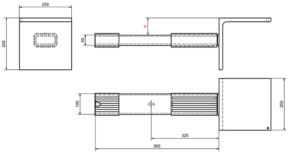
BWC 55 light 2-V-R - reversert
BWC 55-Light 2-V-R er vårt alternativ når det ikke er mulig plassere ytterrøret i eller på innvendig dekke.
Systemet består av 2 deler:
Ytterrør BWC 55 light-1: Denne støpes da opp/ned i det utvendige balkong-/svalgangselementet, og stikker ut av dette. Låsebolt kommer da ut på undersiden. Om ønskelig kan vi flytte låsebolten slik at utsparingen for bolt kommer på elementets oppside.
Innerrør med vinkel BWC 55 light 2-V-R: Dette er delen som forbinder dekke og balkong-/svalgangselementet. På byggeplassen settes innerrøret med påsveiset vinkel i ytterrøret og låses fast. Elementet løftes på plass og vinkelen får anlegg mot allerede etablert sveiseplate i dekkekanten, og sveises fast.
Når tømrer etablerer klimaveggen er det viktig å ha prosjektert med at det skal være lett å komme til for å tette rundt ytterrøret mot GU, med fuge, duk, tape (se skisse).
Alle deler er laget av stål S355, og ytterrøret er varmforzinket. Vinkelen leveres i sort utførelse, da den kommer i innvendig sone.
Se mer i Invisible Connections® Memo 701b side 5
| Bruddgrenselast vertikalt | Stålvinkel rett veg | Fv = 60 kN |
| Bruddgrenselast horisontalt | FH=20 kN |
| WC 55-light-1 ytterrør | ![]() |
| BWC 55-light-2-V-R innerrør | ![]() |
BWC 55 light
| Memo nr | Navn / nedlastning | Format | |
|---|---|---|---|
| Memo nr 700 | BWC 55 740 BWC 55 LIGHT VEILEDNING | PFD | ![]() |
| Memo nr 701b | BWC 55 light, tekniske spesifikasjoner | PFD | ![]() |
| Memo nr 702b | BWC 55 light, beregning av forankringsarmering | PFD | ![]() |
| Memo nr 703b | BWC 55 light, eksempel forankringsarmering | PFD | ![]() |
| Memo nr 704 | BWC 55 740 og BWC 55 Light, eksempel | PFD | ![]() |
| Memo nr 705 | BWC WB for isolerte veggelement | PFD | ![]() |
| Bilde | Produkt |
Step | ![]() DWG 2D |
IFC |
PDF |
|---|---|---|---|---|---|
![]() | BWC 55 light-1 | BWC 55 light-1 | BWC 55 light-1 | BWC 55 light-1 | BWC 55 light-1 |
![]() | BWC 55 light-2-V-R | BWC 55 light-2-V-R | BWC 55 light-2-V-R | BWC 55 light-2-V-R | BWC 55 light-2-V-R |
Balkongforbindelse (skjær) light montering
Balkongforbindelse (skjær) light produksjon
Balkongforbindelse (skjær) light ingeniør
Balkongforbindelse (skjær) light arkitekt
Gå til Brosjyrer









Step
IFC
