Referanser
- Hjem
- Referanser
- Blomkvartalet, Heimdal
Blomkvartalet, Heimdal

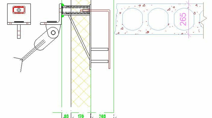
I prosjekt Blomkvartalet har vi levert BWC WB innstøpt i sandwichvegger og opplegg for betongbalkonger på vinkler. Blomkvartalet er oppkalt etter Jan Ditlev Blom som reiste det aller første bolig- og forretningsbygget på Heimdal sør for Trondheim i 1859. Betongfasadene er pigmentert med tre nyanser av terrakottafarger.
IC produkt: BWC WB med vinkler og skråstagfester
Sted: Heimdal sentrum
Bygge år: 2023
Arkitekt: Sweco Architects
Byggherre: Trym Bolig AS
Hovedentreprenør: Trym Bygg og Anlegg AS
Elementprodusent: Overhalla Betongbygg
RIB: Cowi
Her er det 88 leiligheter hvor Trym har satt standarden for hva som er et godt hjem. Parkeringskjelleren og de to første etasjene med næringsarealer fyller hele kvartalet. Oppå næringsdelen ligger boligene, med et fire etasjer høyt bygg langs Heimdalsveien og to bygg i tre etasjer langs Anne Ekrens vei.




