- Hjem
- Produkter
- Balkongforbindelser
- Skjærforbindelser til prefab sandwichvegg kombineres med søyler i front eller skråstag
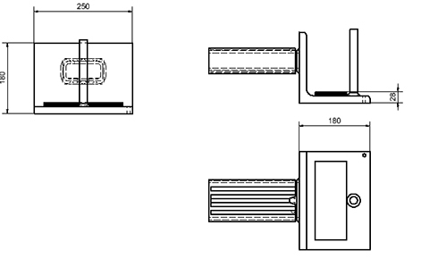
- BWC WB enhet brukt med innerrør med vinkel
Ønsker du mer info og pris?
BWC WB enhet brukt med innerrør med vinkel
BWC WB - Balcony Wall Connection Wall Bracket.
Er utviklet for bruk i prefabrikkerte sandwichvegger i betong (isolerte veggelement). Dette er en ren skjærforbindelse som benyttes i vegg der balkonger/svalganger har frontsøyler eller skråstag. Systemet kan også benyttes på stålsøyler, hup-profiler e.l
Systemet består av flere deler:
BWC WB: Dette er delen som støpes inn på fabrikken som produserer veggelementene, og flukter med yttersjikt.
Innerrør: Dette er delen som forbinder vegg og balkong-/svalgangselementet. Denne kommer i flere varianter. Mest vanlig kombineres den med en innstøpt balkongkasse (BWC 55-4), eller den kommer med en påsveiset vinkel som vist her.
Alle deler er laget av stål S355, og varmforzinket.
Se mer i Invisible Connections ® Memo 705
| Maks. skjærkraft(kN) | 55 kN | |
| Maks. horisontalkraft (kN) | 20 kN |
| BWC WB Målene her er prosjekt spesifikke | ![]() |
| BWC 55 light innerrør med vinkel Målene her er prosjekt spesifikke | ![]() |
BWC 55 light
| Memo nr | Navn / nedlastning | Format | |
|---|---|---|---|
| Memo nr 700 | BWC 55 740 BWC 55 LIGHT VEILEDNING | PFD | ![]() |
| Memo nr 701b | BWC 55 light, tekniske spesifikasjoner | PFD | ![]() |
| Memo nr 702b | BWC 55 light, beregning av forankringsarmering | PFD | ![]() |
| Memo nr 703b | BWC 55 light, eksempel forankringsarmering | PFD | ![]() |
| Memo nr 704 | BWC 55 740 og BWC 55 Light, eksempel | PFD | ![]() |
| Memo nr 705 | BWC WB for isolerte veggelement | PFD | ![]() |
Balkongforbindelse (skjær) light montering
Balkongforbindelse (skjær) light produksjon
Balkongforbindelse (skjær) light ingeniør
Balkongforbindelse (skjær) light arkitekt
Gå til Brosjyrer






