- Hjem
- Produkter
- Trapp-reposforbindelser
- Repos- og veggforbindelser
- TSS 102, teleskopisk forbindelse
Ønsker du mer info og pris?
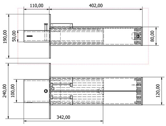
TSS 102, teleskopisk forbindelse
TSS trappeforbindelser består av ett ytter- og ett innerrør. Disse er laget av to ulike hulprofiler og innerrørets profil er slik at dette passer inne i det ytre røret. Innerrøret kan gli inne i ytterrøret og kan trekkes ut og inn på opplegg i trappeveggen. Innerrøret trekkes ut/inn med en wire/returtau. Enheten har en kontrollinje sommarkerer korrekt posisjon av innerrøret, samt et hull for en låsebolt som sikrer at innerrøret blir i riktig posisjon.
TSS enhetene er spesielt velegnet der elementene leveres med ferdig overflate fra fabrikk, f.eks. terrasso.
Invisible Connections TSS 102 leveres i sort stål eller galvanisert utførelse.
Kapasitet 100 kN , minimum dekketykkelse 265 mm ved full kapasitet, 200 mm med redusert kapasitet.
Bilde under viser TSS 102 med innebygd dempeboks og vertikal gummiflens. Denne løsningen reduserer lydgjennomtrenging med 20-25 dB.

| Kapasitet | 100 kN |
| Minimum dekketykkelse | 200mm |
| Vekt sort/galvanisert | 10,80 kg/11,15 kg |
| Trinnlydsdemping | 20-25 dB |
| Svart stål eller galvanisert utførelse |

Prosjektering / design
| Memo nr | Navn/nedlastning | Format | |
|---|---|---|---|
| TSS/RVK V1.6N | Kalkulasjonsverktøy | ![]() | |
| Memo nr 31 | Veiledning, trappeforbindelser | ![]() | |
| Memo nr 41 | Tilleggsprodukter, trappeforbindelser | ![]() | |
| Memo nr 45 | Brannbeskyttelse, trappeforbindelser | ![]() | |
| Memo nr 47 | Trinnlyd, trappeforbindelser | ![]() | |
| Memo nr 54 | Tekniske spesifikasjoner, trappeforbindelser | ![]() | |
| Memo nr 55 | Forankringsarmering, trappeforbindelser | ![]() | |
| Memo nr 64 | Forankringsarmering i par cc 250 mm, trappeforbindelser | ![]() | |
| Memo nr 65 | Forankringsarmering, TSS 20 FA, | ![]() | |
| Memo nr 65 A | Forankringsarmering, TSS 25 L | ![]() | |
| Memo nr 69 | CO2 reduksjon med IC trappesystem | ![]() |
Produksjon / montasje
| Memo nr | Navn/nedlastning | Format | |
|---|---|---|---|
| Memo TSS/RVK | TSS/RVK, anbefalt produksjons og montasjemetode | ![]() | |
| Memo nr 20 | RVK, produksjonsprosedyrer. | ![]() | |
| Memo nr 32 | TSS, produksjonsprosedyrer. | ![]() | |
| Memo nr 66 | TSS 20 FA, montering av trapp | ![]() |
Seismic zones TSS - RVK
| Memo no | Name/download | Format | |
|---|---|---|---|
| Calcyl, Earthquake. | Excel | ![]() | |
| Des Bull | Des Bull Report. | ![]() | |
| Analyses of stairwells performace and damage during Wenchuan earthquake. | ![]() | ||
| Memo no 70 | Memo 70 i C SOLUTION FOR EARTHQUAKE AND STAIRS 2 | ![]() | |
| Memo no 71 | iC solution for earthquake and stairs spreadsheet. | ![]() | |
| Memo no 72 | iC solution for earthquake and stairs additional reinforcement. |
Trappeforbindelse arkitekt
Trappeforbindelse ingeniør
Trappeforbindelse produksjon
Trappeforbindelse montering 1
Trappeforbindelse montering 2
Trappeforbindelse jordskjelvsikring
Trappeforbindelse jordskjelvsikring installasjon
Gå til Brosjyrer








Step
DWG 2D
IFC




