Ønsker du mer info og pris?
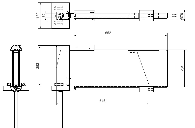
BSF 450 kN, Bjelke-søyle
- Produkter→
- Bjelke-søyleforbindelser→
- Bjelke-søyle forbindelser→
- BSF 450 kN, Bjelke-søyle
BSF er et konsollfritt system.
Systemet består av tre hoveddeler:
- Bjelke-enhet: Støpes inn i betongbjelken og skal forankres med angitt armering.
- Søyle-enhet: Støpes inn i betongsøylen og skal forankres med angitt armering.
- Kniv/sleide: Forbinder bjelken til søylen. Denne er av massivt stål og utgjør den delen av forbindelsen som overfør lasten fra bjelken til søylen. Før montasje er kniven tilbaketrukket og skjult inne i bjelke-enheten.
Alle deler er laget av stål. De tre hovedkomponentene er i stålkvalitet S355.
Gjengestenger er kvalitet 8.8, og stoppskiver er i stålkvalitet S355 (leveres ved forespørsel).
Design prinsipper
Når kniven er på plass i søylen fungerer denne som en utkrager fra bjelkeenden. Lasten påføres på enden av kniven hvor den overføres til bunnplaten i søylekassen. Momentet fra utkragingen balanseres ved at kniven har opplegg mot to halvrundstål på bjelkekassen, ett i fremre overkant av bjelkekassen og ett på undersiden av kassen ved knivens bakre ende. Armering bøyd rundt disse halvrundstålene overfører oppleggskreftene fra kniven videre inn i betongbjelken.
| Maksimal kapasitet | 450 kN |
| Minimum søylebredde | 330 mm |
| Minimum bjelkedimensjon | 190 x 440 mm |
| Vekt S 450, kniv | 35,10 kg |
| Vekt B 450, bjelkeenhet | 10,60 kg |
| Vekt SF 450, søyleenhet | 7,20 kg |

BSF Teknisk info - Prosjektering
| Memo nr | Navn/nedlastning | Format | |
|---|---|---|---|
| Memo nr 501 | BSF KAPASITET OG MINIMUM SOYLE DIMENSJONER | ![]() | |
| Memo nr 502 | BSF HOVEDDIMENSJONER OG MATERIALPARAMETRE | ![]() | |
| Memo nr 503 | BSF REFERENSENIVA FOR PROSJEKTERING | ![]() | |
| Memo nr 504 | BSF TOLERANSER | ![]() | |
| Memo nr 505 | BSF TORSJON | ![]() | |
| Memo nr 506 | BSF EKSPANSJONSSKJOT | ![]() | |
| Memo nr 507 | BSF LOSNINGSFORSLAG IC OG JORDSKJELV | ![]() | |
| Memo nr 508 | BSF KNUTEPUNKT | ![]() | |
| Memo nr 509 | BSF VINTERFORHOLD BRANNBESKYTTELSE KORROSJON | ![]() | |
| Memo nr 510 | BSF MERKING AV ENHETER | ![]() | |
| Memo nr 551 | BSF EN KORT INNFORING | ![]() |
BSF Teknisk info - Dimensjonering
| Memo nr | Navn/nedlastning | Format | |
|---|---|---|---|
| Excel | BSF Calculations | Excel | ![]() |
| Memo nr 521 | BSF BEREGNING AV ARMERING | ![]() | |
| Memo nr 522a | BSF 225 ARMERING I BJELKEENDE | ![]() | |
| Memo nr 522b | BSF 300 ARMERING I BJELKEENDE | ![]() | |
| Memo nr 522c | BSF 450 ARMERING I BJELKEENDE | ![]() | |
| Memo nr 522d | BSF 700 ARMERING I BJELKEENDE | ![]() | |
| Memo nr 522e | BSF 1100 ARMERING I BJELKEENDE | ![]() | |
| Memo nr 523 | BSF EKSEMPEL ARMERINGSFORING I SOYLE | ![]() | |
| Memo nr 524 | BSF BEREGNING AV ARMERING PARVISE ENHETER | ![]() | |
| Memo nr 525 | BSF BEREGNING AV ARMERING GERBERSKJOT BJELKE BJELKE | ![]() | |
| Memo nr 526 | BSF BEREGNING AV ARMERING T FORBINDELSE BJELKE BJELKE | ![]() | |
| Memo nr 527 | BSF TOSIDIG T FORBINDELSE BJELKE BJELKE | ![]() |
BSF Teknisk info - Montasje
| Memo nr | Navn/nedlastning | Format | |
|---|---|---|---|
| Memo nr 540 | BSF MONTASJE OG TETTING AV FUGER | ![]() | |
| Memo nr 541 | BSF MONTASJE LODDSTILLING AV BJELKER | ![]() | |
| Memo nr 550 | BSF PRAKTISKE RAD FOR PLASSERING AV PARVISE ENHETER | ![]() | |
| Memo nr 552 | BSF PRODUKSJON | ![]() |
Tegninger BSF 450
| Bilde | Modell |
STP |
DWG 2D |
IFC | PDF |
|---|---|---|---|---|---|
| B 450 | B450.STP | B450.DWG2D | B450.IFC | ||
| S 450 | S450.STP | S450.DWG2D | S450.IFC | ||
| SF 450 | SF450.STP | SF450.DWG2D | SF450.IFC |
Bjelke-søyleforbindelse arkitekt
Bjelke-søyleforbindelse montering
Bjelke-søyleforbindelse produksjon
Bjelke-søyleforbindelse ingeniør
Gå til Brosjyrer








STP
DWG 2D
IFC