- Hjem
- Produkter
- Trapp-reposforbindelser
- Ekstrautstyr
- Gummiflens GF 25, 60, 100, 102
Ønsker du mer info og pris?
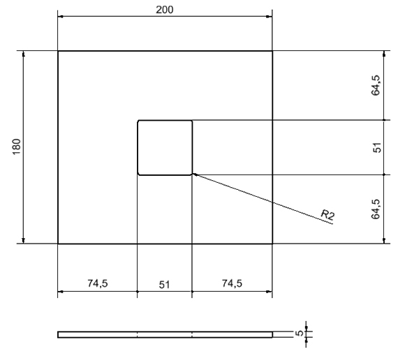
Gummiflens GF 25, 60, 100, 102
Vertikal gummiflens er vår anbefalte metode for å redusere trinnlyd på skoler, sykehus, hotell, møterom, kontor.
Reduserer trinnlyd med 10-12 dB.
Plasseres sidekant repos.

GF 25, passer til TSS 25 L og TSS 20 FA
| Bilde | Produkt |
Step | ![]() DWG 2D |
IFC |
PDF |
|---|---|---|---|---|---|
![]() | GF 25 | GF 25 | GF 25 DWG 2 D | GF 25 | GF 25 Prod tegn |


Forbindelse mellom Trappeløp/Repos
TSS 25 L er en kostnadsbesparende «Alt i en» forbindelse uten behov for hylleløsning.
• Løft direkte i forbindelsen for rask og enkel montering på byggeplass
• Ingen løfteanker eller flikking av trapp i etterkant
• Trinnløs høydejustering.
• Løfteklokker for løft/snuing av trapp i produksjon, sparer flere løfteanker
• Unngår hylleløsning
• Effektiv montasje på byggeplass, unngår shimsing. Estimert tidsbesparelse er 10-15% på byggeplass
• Ferdig armert
For mer informasjon om TSS 25 L se: Memo 65 A


TSS 60 P trappeforbindelsebestår av ytter- og innerrør.
Ytterrøret er laget av 100% resirkulert PE og laget for å passe utenpå innerøret.
Innerrøret kan gli inne i ytterrøret og trekkes ut og inn på opplegg i trappeveggene. Innerrøret trekkes ut/inn med en wire/returtau. Enheten har en kontrollinje som markerer korrekt posisjon av innerrøret. Samt et hull for en låsebolt som sikrer at innerrøret blir i riktig posisjon. Brukervennlige "snappers" for å plassere armeringsbøyler i rett posisjon.
TSS enhetene er spesielt velegnet der elementene leveres med ferdig overflate fra fabrikk, f.eks. terrasso.
Invisible Connections TSS 60 P leveres i svart stål eller galvanisert utførelse.
Kapasitet 57 kN , minimum dekketykkelse 170 mm ved full kapasitet, 120 mm med redusert kapasitet.
For lydreduksjon kombiner med IC Box 100 SRU
Ved ønske om terrasso kan TSS 60 P brukes mellom repos og trapp, se bilde under.


RVK 60 P trappeforbindelse består av ytter- og innerrør.
Ytterrøret er laget av 100% resirkulert PE og laget for å passe utenpå innerøret.
Innerrøret kan gli inne i ytterrøret og skyves ut fra dette og inn på opplegg i trappeveggene. Innerrøret trekkes ut/inn mekanisk. Brukervennlige "snappers" for å plassere armeringsbøyler i rett posisjon.
Invisible Connections RVK 60 P leveres i svart stål eller galvanisert utførelse.
Kapasitet 57 kN , minimum dekketykkelse 170 mm ved full kapasitet, 120 mm med redusert kapasitet.
For lydreduksjon kombiner med IC Box 100 SRU


TSS trappeforbindelser består av ett ytter- og ett innerrør. Disse er laget av to ulike hulprofiler og innerrørets profil er slik at dette passer inne i det ytre røret. Innerrøret kan gli inne i ytterrøret og kan trekkes ut og inn på opplegg i trappeveggen. Innerrøret trekkes ut/inn med en wire/returtau. Enheten har en kontrollinje som markerer korrekt posisjon av innerrøret, samt et hull for en låsebolt som sikrer at innerrøret blir i riktig posisjon.
TSS enhetene er spesielt velegnet der elementene leveres med ferdig overflate fra fabrikk, f.eks. terrasso.
Invisible Connections TSS 101 leveres i sort stål eller galvanisert utførelse.
Kapasitet 100 kN , minimum dekketykkelse 200 mm ved full kapasitet, 170 mm med redusert kapasitet.
For trinnlydsdemping, kombiner med IC Box 100 SRU


RVK 101 trappeforbindelser består av ett ytter- og ett innerrør. Disse er laget av to ulike hullprofiler. Innerrørets profil er slik at dette passer inn i det ytre røret. Innerrøret kan gli inne i ytterrøret og kan skyves ut og inn på opplegg i trappeveggen.
Invisible Connections RVK 101 leveres i sort stål eller galvanisert utførelse.
Kapasitet 100 kN , minimum dekketykkelse 200 mm ved full kapasitet, 170 mm med redusert kapasitet.
For trinnlydsdemping, kombiner med IC Box 100 SRU

Trappeforbindelse arkitekt
Trappeforbindelse ingeniør
Trappeforbindelse produksjon
Trappeforbindelse montering 1
Trappeforbindelse montering 2
Trappeforbindelse jordskjelvsikring
Trappeforbindelse jordskjelvsikring installasjon
Gå til Brosjyrer








Step
IFC
PDF







